Partially Constructed Residence At Oranisland, Oranmore, Galway






















Partially Constructed Residence At Oranisland, Oranmore, Galway
Type
Detached House
Status
Sold
BER
Description
A rare opportunity to acquire a partially constructed architect designed contemporary residence on 3 levels in a prime location at Oranisland, Oranmore.
The property comprises a partially constructed residence which offers excellent sea views to the rear overlooking land which is designated as a special area of conservation.
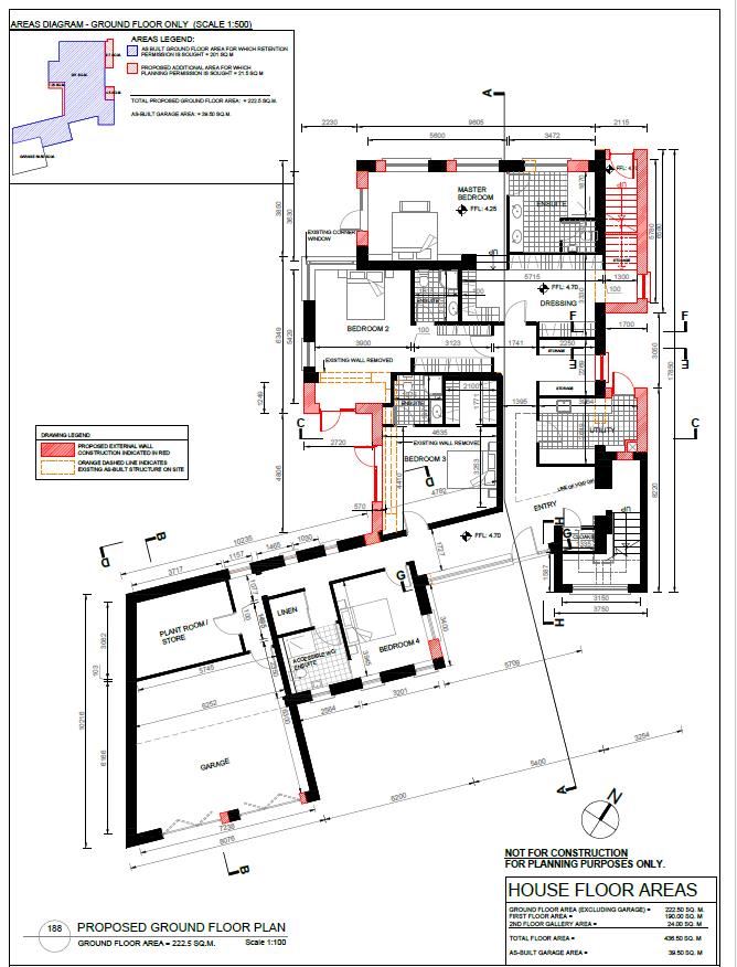
Retention planning permission has been granted under planning reference 20/1800 for the retention and completion of the residence with additional space approved.
Careful thought and consideration was given to the design with generous living and sleeping accommodation extending in all to approximately 436.50 sq. metres plus a garage of 39.5 sq. metres.
The property overlooks a green area within this exclusive development on the Maree Road and is within minutes’ walk of the bustling village of Oranmore which offers all necessary amenities including shops, supermarkets, pubs, restaurants, schools and Church. Galway City is only a short drive away.
Further details from Michael Mullery 091 567275
Oranmore Neighbourhood Guide
Explore prices, growth, people and lifestyle in Oranmore.

091 567 275